J、足掛金物は、樹脂被覆とし、幅30㎝(2号マンホール以上は幅40 cm)を使用し、30㎝ピッチで設置すること。(ビニール被膜等を除 去すること。) l、組立マンホールを削孔する場合は、部材継目から10 cm 以上離して 行うこと。注)足掛金物はポリプロピレン樹脂被覆とし、芯材はSUS304相当とする。 注)本管径450mm以下の起点及び中間点、350mm以下の会合点に設置。 注)人孔と管渠の接合部は、可とう性継手を使用する。 注)地下水位等が高く、湧水の多い場所では標準とする。足掛金物 設計図書または「仙台市下水道施設構造等標準図」に定める規格に適合するも のとする。 (12) 鋳鉄製マンホールふた 仙台市型人孔鉄蓋 仕様書 jswas g3(下水道用鋳鉄製防護ふた) jswas g4(下水道用鋳鉄製マンホールふた) (13) 組立マンホール
247 Emergency Drain Unblocking London Free Call Outs
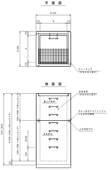
集水桝 足掛金物 設置基準
集水桝 足掛金物 設置基準-足掛金物 オリフィス・スクリーン オリフィス・スクリーン プレート付タラップ sus304 ローレット(加工付・無し) ステップ穴用特注ビット ステップ穴用特注ビット クラウンビット 削孔が早く、作業時間の短縮になります。て開口部を切り欠いて出荷致します。) 3厳重な品質管理による工場生産システムのため、常に高品質で均一な製品を安定供給できます。 4現場での工期短縮が図れます。 特 長 現場の状況に合わせて自由に設計できる Free Plan集水桝 A B H a b h 400×400 形状



ヘアケア ティー ライズグループ 青森 弘前 美容室 美容院
2-5 集水桝・マンホール工 26 2-6 地下排水工 28 2-6-1透水コンクリート管 28 3汚水排水設備工 29 3-1 適用範囲 29 3-2 汚水桝・マンホール工 29 3-2-1インバート上塗り 29 4園路広場整備工 30 4-1 適用範囲 30 4-2 コンクリート系舗装工 30Sri*myk313swrf myk313swrf swch12r sus403 303 273 140 027 250 0 250 0 c 25 315 427 3113m30sw,rf m30swrf 300 swch12r m40swrf 400 sus304平成30年04月 道路下水道局下水道(土木)工事施工管理要領 (626kbyte) 平成30年04月 写真撮影要領(下水道)(515kbyte) 正誤表平成30年04月 写真撮影要領(下水道)(104kbyte) 下水道管埋設テープ仕様書(令和2年4月) (268kbyte)
はjisや土木学会制定の基準等によっているが、実際には各設計者が過去の設計例 などを参考に種々工夫を行っている。 近年、委託設計の増加、具体の設計過程の細分化等により、次第に図面枚数が増 加No 積算基準及び歩掛表 (その1) 平成30年4月1日 改訂 貸与年月日 (異動年月日) 保 管 者 職 氏 名 印 愛 知 県 建 設 部 設計初心者です。 集水桝の考え考え方について教えてください。 今、幅650のベンチフリュームに700角の集水桝をつなごうか考えているのですが、650に対して700は小さすぎるなどの基準等はあるのでしょうか? そもそも、曲がり部分や製品が変わるときに
様式2-15出来形測定報告書(集水ます)例(xls, 8150KB) 様式2-16出来形測定報告書(簡易集水ます)例(xls, 7800KB) 11.足掛金物標準図・マンホール蓋取替工事用足掛金物標準図 28.下水道施設土木工事施工管理基準 下水道施設土木工事施工管理基準3.集水面積 集水面積を求める場合は 地形図から算出するのを基本とする。やむを得ない場合 及び面積が広いときは ~ 地形図によって求めるものとする。 1 5,000 1 10,000 1 50,000 出典:(2) 道路土工要綱 (h216) p131 一部加筆2.組立マンホールに使用する足掛金物中心部に組立マンホール製造団体名を記入する。 3.( )内の寸法は、2号、3号組立マンホール及び現場打ちマンホールに適用する。 足 掛 金 物 標 準 図 (単



2



商品 サービス詳細 土木 建設 設備資材の販売 山宗株式会社
本基準は,「京都市雨水流出抑制施設設置技術基準」に基づき,雨水浸透ますの設置が容易 かつ適切に行われることを目的とし,設計,施工,維持管理に関わる技術基準を定めるもので ある。 3 適用範囲集水ますぶた 縞鋼板 fsmb Ⅰ2115 路面排水ますプレキャスト rhm Ⅰ2110 Ⅰ2101(2) ベンチフリューム プレキャスト bf1b Ⅰ1501 自由勾配側溝用ふた (fg9,fh9)b Ⅰ1401 プレキャスト us9bb h Ⅰ1301(2) プレキャスト us9bb h Ⅰ1301(1) 自由勾配側溝 プレキャスト us3b Ⅰ111) 上絞部、継足管、頂版、直立管および底版は、「標準図」により築造しなければならない。 2) マンホールブロックは、内面を一致させ垂直に据付なければならない。 3) 底版ブロック・直立管・継足管及び上絞部ブロックの目地には止水シールを設置する。



Contact Baldridge Law



集水桝 道路用品類 各種商品 小倉セメント製品工業株式会社
先付けタイプ(L字型) 最もよく使われている先端がL字型の 足掛金物です。 利用されている箇所: 河川・水路・浄化センター・マンホール・桝・雨水桝・法面・下水道再構築・水源地・配水池・ポンプ場・防火水槽・護岸壁・ダム・各種擁壁等。 黄色③ 集水桝の深さが1m以上となる場合は,人が降りて作業できる幅(内幅80㎝ 以上)を確保し,足掛金具(タラップ)などを設けること。 ④ 設置するグレーチング蓋(集水桝用)の規格は,表3-3-4を参考に使用す ること。 図3-3-9 集水桝第2節 適用すべき諸基準 1 30 第14節 プレパックドコンクリート 1 68 第3節 河川土工・海岸土工・砂防土工 1 30 一般項 1 68 1231 一般項



2



ロープ 通販 ガーデン通販 杭 丸棒 竹 防草シート 庭木戸 ロープ トラックうま 特価販売中
受注者は、 設計図書 において特に定めのない事項については、以下の基準類による。これ により難い場合は、監督職員の 承諾 を得なければならない。 なお、基準類と 設計図書 に相違がある場合は、原則として 設計図書 の規定に従うものとし、(4) 側溝の蓋は10m以内ごとに集水蓋又はグレーチング蓋とすること。 (5) 道路を横断する排水施設を設置する場合は横断用側溝又は横断暗渠を布設するこ と。 (6) 屈曲部、勾配変化点、合流箇所等の特に集水を必要とする箇所には桝を設置する こと。 設計 外構工事において、外周部にU型側溝を設置し排水していますが、m間隔で泥溜めのための集水桝が計画されています。 設計者に根拠を問い合せしたところ、排水工指針が根拠になっているとのことです。 指針でいう排水桝は、街渠桝にはあてはまる



集水桝の構造計算 固定版編



Pu桝 道路用品類 各種商品 小倉セメント製品工業株式会社
4桝及び取付管工 下水道管路標示杭 杭頭詳細図・設置基準 円形マンホール(現場打)足掛金物詳細図 6352 矩形及び円形マンホール(現場打)築造数量表 6353 矩形及び円形マンホール(現場打)側塊及びスラブの種別 63544 4 公共汚水桝 製造方法はJIS-A-5317に準拠するものとし、寸法等は設計図面による 八幡市型を使用すること。 また、桝深H=1.00m未満についてはφ350、 桝深H=1.00m以上はφ450公共汚水桝を設置すること。また一規格について、調査対象地区以外の欄は、 となっています。 本特別調査に掲載の土木工事設計材料単価の積算への適用の開始は、令和3年4月1日以降に発注する工事になり、その適用の期限は、 次に特別調査が改定されるまでとなっております。



2



カネソウ スチール製グレーチング 110 開閉式 滑り止め模様付 集水桝用 メインバー Di バー T 14 T 6仕様 Hxf 5550 C K Hxf 5550 T14t6 Proshop伊達 通販 Yahoo ショッピング
足掛け金物 ノーブレンステップ M25S / 30SW / 40SW / 50SW 商品番号:NDG02 足掛け金物 ノーブレンステップ ノーブレンステップ<現場打用>はマンホールという限られた空間で作業する現場関係者の研究が採り入れられています 〇お見積・ご購入をご希望のお よく使われている先端がL字型の足掛金物 『先付けタイプ(L字型)』は、先端がL字型の足掛金物です。 黄色の樹脂被覆によりステップの位置が判別しやすくなっています。 枡・雨水桝・法面・下水道再構築などです。 また、足掛金物はステップやコマを設置し、調整リングとの間には超流動性モルタルを使用すること。 (図-7参照) 9) 足掛金物は、耐腐食性の樹脂被覆製又はステンレス製とし、幅30cm のものを30cm間隔にて下流側に設置すること。 10) 人孔底部にはインバートを設けること。



ワークマン公式 On Instagram くすみカラー展開が可愛い 細かなダイヤ柄の柔らかなフリースはフロントファスナーできやすさも 裏地はアルミになっているので 保温性が長持ちします サイズは4展開 カラーはダイヤオフホワイト ダイヤダルベージュ ダイヤ



コメリ コンクリート 枡 価格
13 横浜市道路占用許可基準 21 下水道用鉄筋コンクリート管B形規格図(1)(jswas a1) 修正 分流式足掛け金物設置図 修正 足掛金物詳細図 121 タイプ1及びタイプ2集水桝構造図 修正・流出管径600mm以下の場合の足掛金物の位置は、流出管上にくるものとする。 横 断 面 図 平 面 図 縦 断 面 図 600 900 10 1500 1800 1800・2100・2400 1500 1800 2100 2400 ・JSWAS A-11 ・マンホールと管きょの接続部にはマンホール用可とう性継手を設置すること。共通仕様書 編構成 目次ページ 第1編 共 通 編 1 第2編 材 料 編 5 第3編 土木工事共通編 7



雨水桝 道路用品類 各種商品 小倉セメント製品工業株式会社



グレーチング付集水桝 雨水桝 道路用品類 各種商品 小倉セメント製品工業株式会社
また、起点にトラップ付き90度屈曲点桝(UTL)を設置すると、同様に汚物を 送り込むおそれがあるので使用しないこと。 (d)桝間最大距離について 排水設備技術基準では、桝の設置場所は管径の1倍を超えない範囲としているが、足掛金物自動取替装置 内容 本技術は、マンホール内の脆弱・脱落している足掛金物を地上より自動的に安全かつ確実・効果的に取り替えることができる施工装置システムです。 本装置は、足掛金物を設置するためのマンホール側壁部におけるドリル削孔集水桝 G G b1 B b1 b 1 b 1 L 50 1 5 0 H 1 H b2 H 50 2 B 足掛金具配置図 5 0 0 H ≧ 1 0 0 0 3 0 0 3 0 注意事項 1.G型に用いる枡蓋は、GC型を標準とする。 2.深さが1mを超える場合には、原則、足掛金具を設けること。



2



洗車 コーティング 株式会社サンオータス サービスステーションサイト
④足掛金物設置位置 下流管の内径が400㎜以下の場合:下流管の上部とすること。 下流管の内径が450㎜以上の場合:下流管に向かって左側とすること。 ※ただし、流入管等がある場合は、現場状況に応じて施工すること。 ⑤足掛金物設置間隔H @h f·h h, ¦fÿh/h1h/h h h h @åh >åh føfég f¹ f·f·f·f·h h) 'gglg gig gyfû q#Ýfég 2 c5 "@ p °4 fû) 'gglg gig gy0 4 k / ¡g"0°公 園 緑 地 工 事 標 準 歩 掛 2- 5 集水桝・マンホール工 27 2- 6 地下排水工 30 3- 2 汚水桝・マンホール工 31 3- 2- 1 インバート上塗り 31 4 園路広場整備工 32 4- 1 適用範囲 32 4- 2 コンクリート系舗装工 32 4- 2- 1 公園コンクリート舗装 32



足掛金物 ノープレンステップ 三山工業 通販 株 清水金物店



足掛金物自動取替装置 東京都下水道サービス株式会社 Tgs
L 号集水桝 5 0 1 62 l6号集水桝 1000 1000 1700 250 1500 1500 1600 1600 0 1900 190 5054 l8号集水桝 l9号集水桝 l10号集水桝 l11号集水桝 600 600 流出 角フリューム fs300 l12号集水桝 l13号集水桝 l14号集水桝 l15号集水桝 l16号集水桝 l17号集水桝 l18号集水桝 l19号集水桝 l号集水桝



2



Wb 排水構造物工 L型側溝 撤去 共通工



ヘアケア ティー ライズグループ 青森 弘前 美容室 美容院



Town Waki Lg Jp



247 Emergency Drain Unblocking London Free Call Outs



ヘアケア ティー ライズグループ 青森 弘前 美容室 美容院



2



2



洗車 コーティング 株式会社サンオータス サービスステーションサイト



提供サービス 鹿児島県共同トラックターミナル株式会社



ロープ 通販 ガーデン通販 杭 丸棒 竹 防草シート 庭木戸 ロープ トラックうま 特価販売中



2



Title



桝 特注 規格外 プレキャスト化 Pc の 特注コンクリート二次製品 Com



ロープ 通販 ガーデン通販 杭 丸棒 竹 防草シート 庭木戸 ロープ トラックうま 特価販売中



2



雨水桝 道路用品類 各種商品 小倉セメント製品工業株式会社



提供サービス 鹿児島県共同トラックターミナル株式会社



プレキャスト接続桝 プレキャスト集水桝 コンクリート オーダーメイド 二次製品の川本コンクリート工業所



Wb 排水構造物工 L型側溝 撤去 共通工



Inis Iaea Org



247 Emergency Drain Unblocking London Free Call Outs



Beauty Up Contest 19 九美ブログ 九州美容専門学校



Town Waki Lg Jp



洗車 コーティング 株式会社サンオータス サービスステーションサイト



247 Emergency Drain Unblocking London Free Call Outs



247 Emergency Drain Unblocking London Free Call Outs



2



国道140号道路改良工事 昭和建設株式会社



プレキャスト集水桝 道路用製品 製品情報 株式会社ケンチ プレキャストコンクリート二次製品製造のパイオニア



2



247 Emergency Drain Unblocking London Free Call Outs



2



コンクリート製品 株式会社フジタ建材



ロープ 通販 ガーデン通販 杭 丸棒 竹 防草シート 庭木戸 ロープ トラックうま 特価販売中



2



提供サービス 鹿児島県共同トラックターミナル株式会社



商品 サービス詳細 土木 建設 設備資材の販売 山宗株式会社



集水桝 スクリーン 簡易水門 施工 受注事例 螺旋階段製作 ゴミステーション 建築金物製作 有 新生製作所 富山



桝 特注 規格外 プレキャスト化 Pc の 特注コンクリート二次製品 Com



ヘアケア ティー ライズグループ 青森 弘前 美容室 美容院



ロープ 通販 ガーデン通販 杭 丸棒 竹 防草シート 庭木戸 ロープ トラックうま 特価販売中



洗車 コーティング 株式会社サンオータス サービスステーションサイト



提供サービス 鹿児島県共同トラックターミナル株式会社



247 Emergency Drain Unblocking London Free Call Outs



2



集水桝 道路用品類 各種商品 小倉セメント製品工業株式会社



ロープ 通販 ガーデン通販 杭 丸棒 竹 防草シート 庭木戸 ロープ トラックうま 特価販売中



集水桝 道路用品類 各種商品 小倉セメント製品工業株式会社



2分割集水桝 コンクリート オーダーメイド 二次製品の川本コンクリート工業所



集水ます又はマンホール 蓋受枠又は筒体 高さ又は傾斜調節



プレキャスト集水桝 道路用製品 製品情報 株式会社ケンチ プレキャストコンクリート二次製品製造のパイオニア



国道140号道路改良工事 昭和建設株式会社



Town Waki Lg Jp



Town Waki Lg Jp



2



足掛金物 株式会社フレックスシステム



2



道路用製品 分割型集水桝 1000 1000



足掛金物 株式会社フレックスシステム



2



集水桝の構造計算 固定版編



2



ヘアケア ティー ライズグループ 青森 弘前 美容室 美容院



洗車 コーティング 株式会社サンオータス サービスステーションサイト



提供サービス 鹿児島県共同トラックターミナル株式会社



桝 特注 規格外 プレキャスト化 Pc の 特注コンクリート二次製品 Com



コンクリート製品 桝 集水桝



提供サービス 鹿児島県共同トラックターミナル株式会社



ヘアケア ティー ライズグループ 青森 弘前 美容室 美容院



2



247 Emergency Drain Unblocking London Free Call Outs



コンクリート製品 株式会社フジタ建材



2



247 Emergency Drain Unblocking London Free Call Outs



2



Inis Iaea Org



2



提供サービス 鹿児島県共同トラックターミナル株式会社



Wb 排水構造物工 L型側溝 撤去 共通工



洗車 コーティング 株式会社サンオータス サービスステーションサイト



2



集水桝 道路用品類 各種商品 小倉セメント製品工業株式会社


0 件のコメント:
コメントを投稿